despre noi proiecte servicii cariere contact
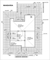
Locuinta unifamiliara_com Dridu, jud.Ialomita
comuna Dridu, jud. Ialomita

P+1Etaj+M

© Copyright 2007 CIVIDINI PROIECT. Toate drepturile rezervate.
Design si programare: DATAGRAM